cenovou nabídku
Popis domu Písek
Proporce domu nevyhovují vašemu pozemku? Přejete si změnit orientaci ke světovým stranám? Potřebujete garáž navíc? Rádi vyjdeme vstříc! Naši architekti upraví projekt podle vašich potřeb nebo navrhnou jedinečný dům přímo pro vás.
Proč stavět s Energy Domy?
Rodinná firma
Jsme stavební firma, která svou specializací na hrubé stavby, důrazem na estetickou hodnotu a využitím systému Durisol překračuje běžné standardy. Po celou dobu si zachováváme charakter rodinného podniku, v němž máte jistotu, že se vaší zakázce bude osobně věnovat někdo z majitelů.
1000+ realizací
Zakladatel firmy Miloš Doležal působí v oboru od 90. let a v roce 2013 se k němu připojil syn Lukáš. Přes 1000 realizovaných domů nám přineslo tolik zkušeností, že dnes zvládáme opravdu velké projekty pro ty nejnáročnější investory. Stavíme rychle, precizně a kvalitně, což ve stavebnictví zdaleka není pravidlem.
Dokonalé zdivo
Při výstavbě používáme unikátní zdicí systém Durisol. Tento ekologický materiál má skvělé izolační vlastnosti, výborně akumuluje teplo a zároveň dovoluje domu dýchat. Pokud jde o rezidenční stavění z Durisolu, jsme jednička na evropském trhu.
Krásné domy jako poslání
Poznávacím znamením našich domů jsou čisté linie, výrazné přesahy a prosklené plochy. Za těmito prvky se skrývá značná stavební a statická náročnost a ne každý je dokáže realizovat. My jsme na nich naopak založili svou specializaci.
Svoboda pro vaše sny
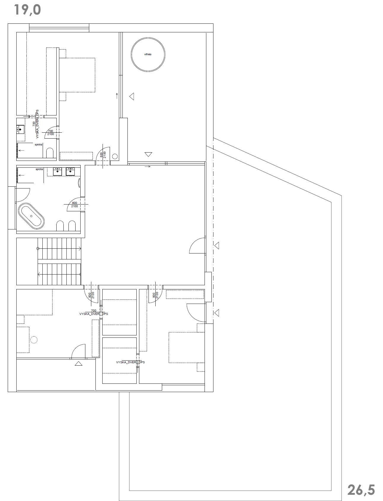
Naše domy jsou nejen krásné, ale i promyšlené do sebemenšího detailu. Vybírat můžete z více než 110 typových projektů navržených špičkovými architekty. Každý z nich přizpůsobíme vašim požadavkům nebo připravíme zcela nový na míru. Jsme tu, abychom splnili vaše sny o krásném domově.
Stavíme ze zatepleného zdiva Durisol
Durisol je unikátní zdicí systém s vynikajícími tepelně i zvukově izolačními vlastnostmi a bezkonkurenční variabilitou.
Umožňuje nám stavět výjimečné domy.

Durisol tvarovka
Dřevocementovou tvárnici tvoří mineralizovaná dřevní štěpka (90 % dřeva), 9 % cementu a 1 % vodního skla. Promyšlená konstrukce zajišťuje RespireEffect: zdivo izoluje a zároveň dýchá.
Integrované zateplení
Grafitová izolace Neopor je integrována uvnitř tvárnice, takže už samo zdivo má dobré izolační vlastnosti.
Omítky a fasády
Dřevocementové tvárnice mají vynikající přilnavost. Spolehlivě se spojí se všemi omítkami a fasádami dostupnými na trhu.
Betonové jádro
Beton dokonale akumuluje teplo a chlad. Zároveň tvoří stabilní jádro, díky němuž je zdivo pevné a bezpečné.


